Oportunidad única de inversión en Son Espanyolet, Palma

526 m2
200 m2
N/A
N/A
REF. 361085
1.300.000 €

Edificio en construcción situado en una zona residencial con mucha demanda, Son Espanyolet se caracteriza por su ambiente tranquilo y su proximidad a colegios y a poca distancia del popular barrio de Santa Catalina y del Paseo Marítimo de Palma. El edificio consta de tres viviendas, cada una con una superficie de entre 90 y 110 metros cuadrados, diseñadas para maximizar el confort y el estilo. 

Enviar a un amigo

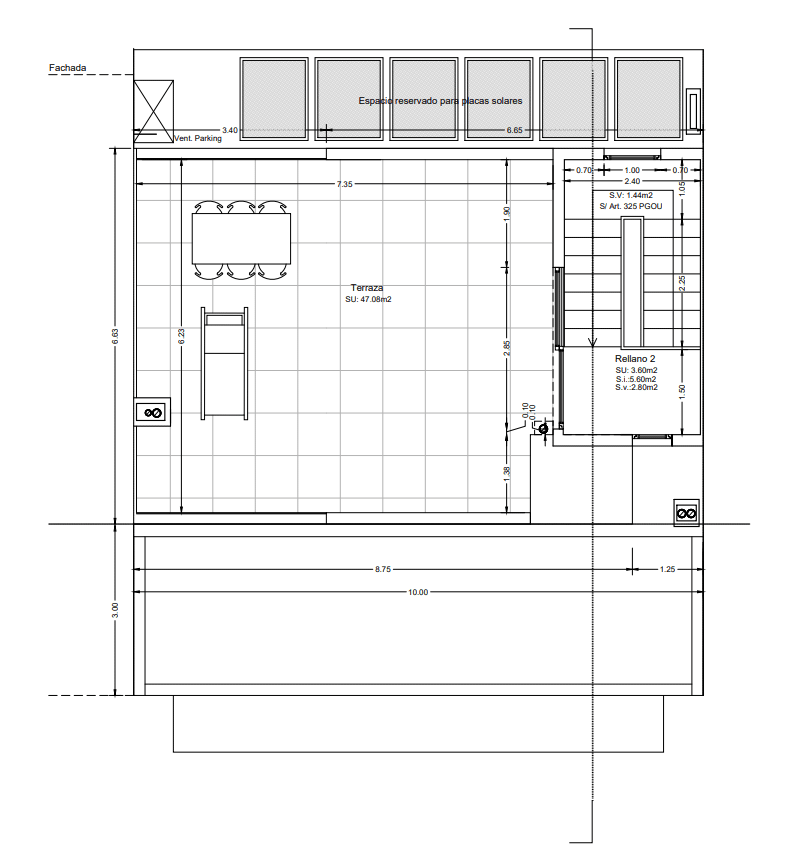
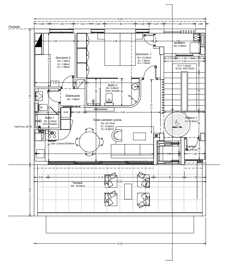
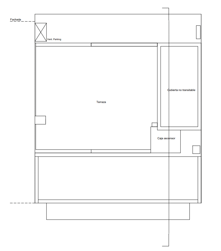
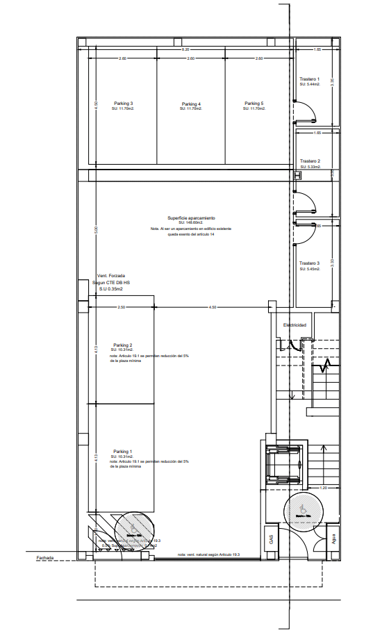
Edificio en construcción situado en una zona residencial con mucha demanda, Son Espanyolet se caracteriza por su ambiente tranquilo y su proximidad a colegios y a poca distancia del popular barrio de Santa Catalina y del Paseo Marítimo de Palma.  El edificio consta de tres viviendas, cada una con una superficie de entre 90 y 110 metros cuadrados, diseñadas para maximizar el confort y el estilo.  Incluye cinco aparcamientos y tres trasteros, agregando valor y conveniencia. Ascensor y Acabados de Calidad Alta-Media asegurando un estilo de vida cómodo y lujoso. Licencia y Proyecto: Con el proyecto y licencia de obra ya pagados, y una calificación urbanística de B2a 9ml, el proyecto está listo para continuar su desarrollo. Mallorcasite, su agencia inmobiliaria en Mallorca, le recomienda esta propiedad por ser una buena inversión. 

Extras

Vistas despejadas / Terraza / Ascensor / Aire acondicionado / Ventanas con doble seguridad / Garaje / Trastero / Lavadero

Certificación energética

En trámite



Contactar



Kristin Hillmann Kristin Hillmann >Consultora en Ventas