Casa en el centro de Pollença con proyecto de reforma y licencia

154 m2
63 m2
4
2
REF. 6966
420.000 €

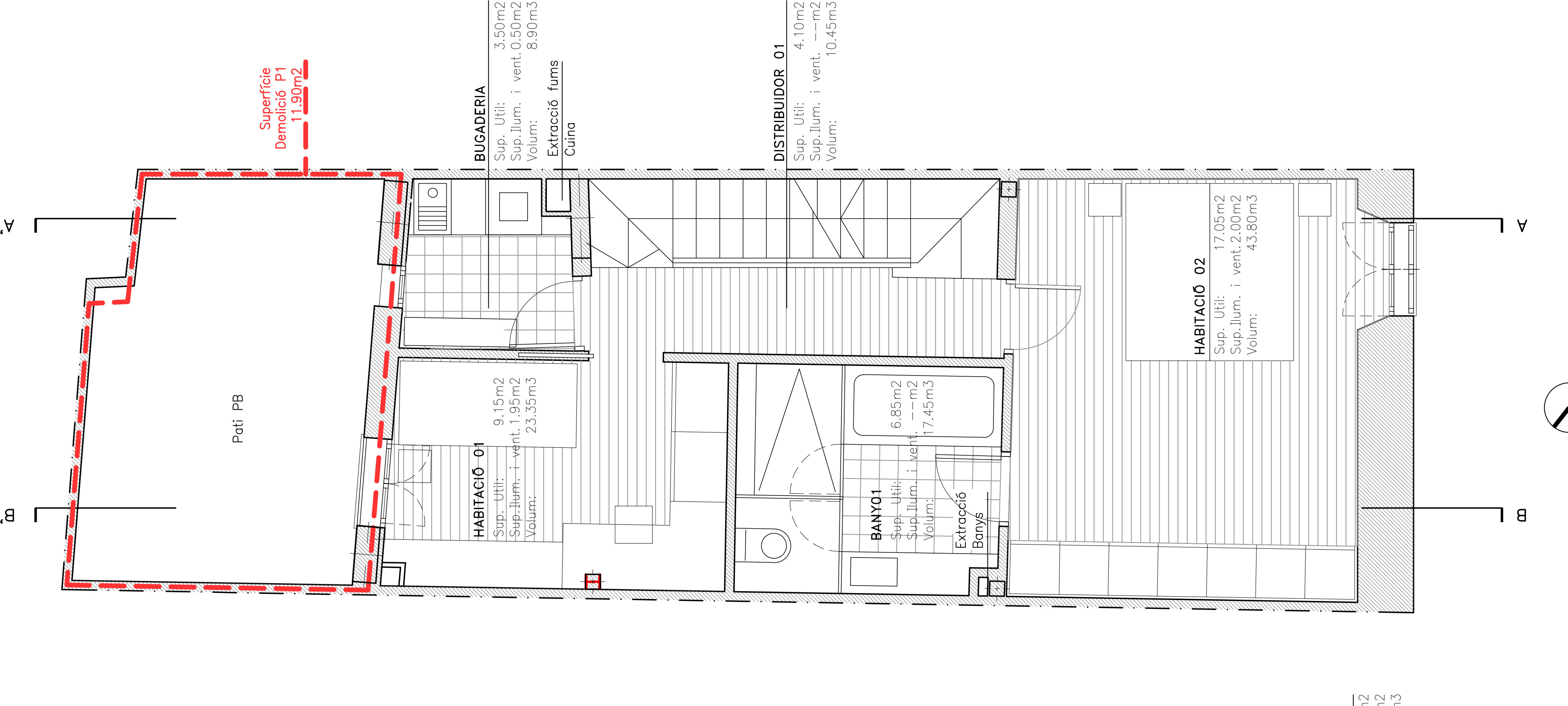
Proyecto con licencia de obras para empezar de inmediato para casa ubicada en una de las mejores y tranquilas calles de Pollença  con tráfico restringido, cerca de la Plaza Mayor.La casa se distribuye en tres plantas, con un amplio espacio abierto en planta baja distribuido en cocina, comedor y salón integrados, además cuenta con un patio y un aseo. En las otras dos plantas se ubican 4 habitaciones, 2 baños, lavadero y sala técnica.

Enviar a un amigo

Proyecto con licencia de obras para empezar de inmediato para casa ubicada en una de las mejores y tranquilas calles de Pollença  con tráfico restringido, cerca de la Plaza Mayor. La casa se distribuye en tres plantas, con un amplio espacio abierto en planta baja distribuido en cocina, comedor y salón integrados, además cuenta con un patio y un aseo. En las otras dos plantas se ubican 4 habitaciones, 2 baños, lavadero y sala técnica. Pollensa no es sólo un pueblo del Norte de Mallorca, sino que al mismo tiempo es sinónimo de una incomparable mezcla de cultura, encanto,fusión de modernidad y tradición y la calidez de sus habitantes, que fascina a todos los visitantes del pueblo. Además, Pollensa está dotada de instalaciones comerciales y deportivas, hay tiendas y servicios de todo tipo, colegios, centros de salud y una multitud de restaurantes y bares que llenan de vida sus calles medievales durante todo el año. Mallorcasite, su agencia inmobiliaria en Mallorca, le recomienda esta propiedad por estar en pleno centro de Pollensa y por tener licencia.

Extras

Certificación energética

En trámite



Contactar



Kristin Hillmann Kristin Hillmann >Consultora en Ventas